Hermon Worldwide, LLC

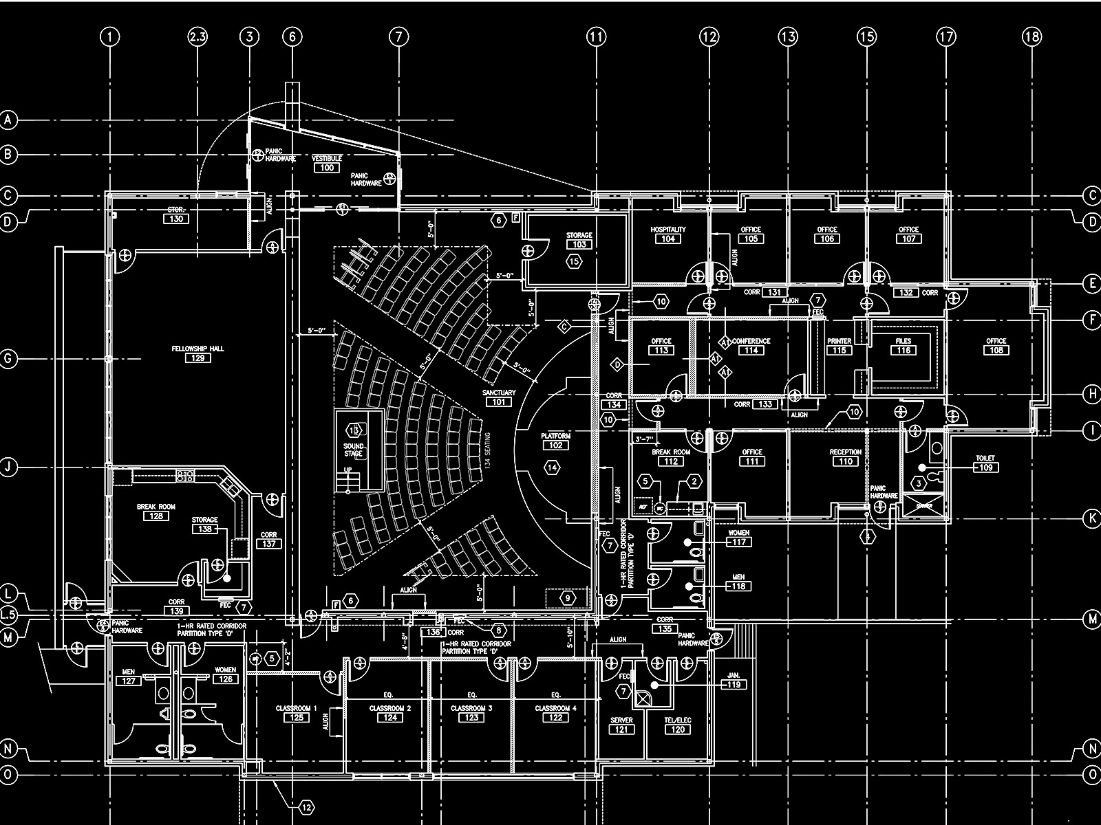
Bethel World Outreach Church – Houston, TX

Untitled design (12)
Design:
Maki-Tect
Project Engineers
Nedu Engineering Services
Project Type:
Sanctuary
Project Size:
9,400 SF